Fotos Fotos
Datos Volver
Oportunidad

DESARROLLO DE DUPLEX 3 AMBIENTES A 6 CUADRAS DEL MAR EN MAR DEL TUYU

Location CALLE 6 ENTRE 88 Y 89 - Mar del Tuyú

Prev
Prev
Venta
USD 38.000
Propiedad

Dúplex/tríplex

Ambientes

3 ambientes

Dormitorio

2 dormitorios

Baño

1 baño

Toilette

1 toilette

Superficie

Sup. cubierta 65m2

Superficie Total

Sup. total 80m2

Pisos

2 pisos

Disposicion

Disposición Frente

Antiguedad

Antigüedad En construcción

Condicion

Estado Excelente

Datos Acerca de la propiedad

DUPLEX AL FRENTE
3 AMBIENTES
EN DESARROLLO
A 6 CUADRAS DEL MAR
ZONA DE PLAYAS AMPLIAS

ENTREGA EN FEBRERO 2026

LA PROPIEDAD...

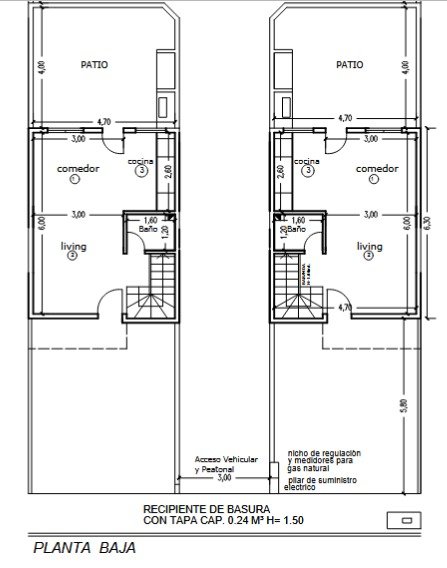
   PLANTA BAJA
  • COCINA
  • COMEDOR
  • TOILETTE
  • PATIO CON FOGON Y PILETA LAVADERO
  • ESPACIO VEHICULAR
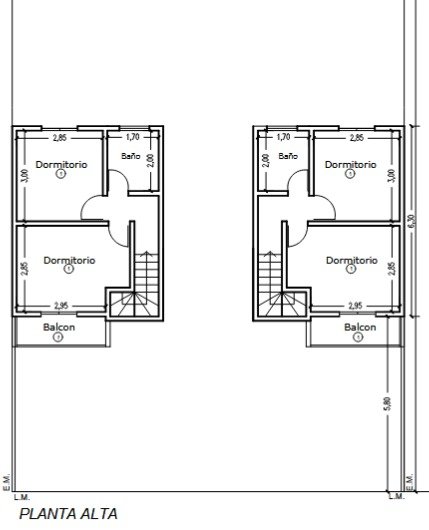
PLANTA ALTA
  • 2 DORMITORIOS
  • BAÑO COMPLETO

SE ENTREGA CON...
  • MESADA
  • BAJOMESADA
  • TERMOTANQUE
  • BOMBA CENTRIFUGA
  • GRIFERIAS 
  • SANITARIOS

UBICACION
CALLE 6 ENTRE 88 Y 89
MAR DEL TUYU

Comodidades Comodidades

Patio

Con patio

Cochera

cochera

Con parrilla

balcon

Con balcon

Cerca del mar

Cerca del mar

Ver más vermas

Datos Ubicación

Venta

USD 38.000

Datos Propiedades Relacionadas

Contacto

¿Te interesa esta propiedad?
Contactate ahora

Ver
Chatea con nosotros
Whatsapp